- Úvod
- Nabídka nemovitostí
- Kancelář 20 m2, s možností parkování, v centru Prahy
Kancelář 20 m2, s možností parkování, v centru Prahy
Popis nemovitosti
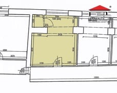
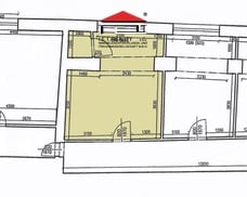
Nabízím exkluzivně k pronájmu kancelář v centru Prahy, poblíž Bílé Labutě a Palladia. Jedná se o místnost s výměrou 20 m2 v 1. patře administrativní budovy, s výhledem do dvora. V rohu místnosti se nachází komora, kterou můžete využít i jako malou šatničku. Podlahu tvoří plovoučka. Samozřejmostí je připojení k internetu. Na chodbě je k dispozici společná kuchyňka a 2x WC. Přístup do kanceláře máte non-stop. Možnost parkování ve dvoře.
Okolí nabízí široké stravovací možnosti. Výborná dopravní dostupnost: metro, tramvaj, autobus. Na Masarykovo nádraží dojdete za 3 min.
Nejde o nabídku k uzavření jakékoliv smlouvy, ale o nezávazné poskytnutí základních orientačních informací, resp. nejde o součást kontraktačního procesu dle ust. § 1731 a násl. zák. č. 89/2012 Sb., občanského zákoníku v platném znění, a tedy se neuplatní ust. § 1729 zák. č. 89/2012 Sb., občanského zákoníku v platném znění. K případnému uzavření jakékoliv smlouvy může dojít toliko v listinné formě, po dohodě na jejím obsahu a všech náležitostech, přičemž případné právní jednání bude uskutečněno přímo mezi smluvními stranami."
Informace k nemovitosti
| Lokalita: | Zlatnická, Praha - Nové Město |
| Cena: | pronajato |
| Kategorie: | Kanceláře |
| Datum realizace: | září 2021 |

Lukáš Pecháček
M: +420 727 886 321T: +420 221 722 036
[email protected]Kontaktovat I.E.T.Reality, s.r.o.
Lindleyova 2822/2
Praha 6










