- Úvod
- Nabídka nemovitostí
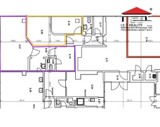
- Nebytový prostor 31 m² u OC Krakov a MHD, Praha 8
Nebytový prostor 31 m² u OC Krakov a MHD, Praha 8
Popis nemovitosti
Nabízím exkluzivně k pronájmu nebytový prostor o výměře 31 m2 na sídlišti Bohnice. Nachází se v 1. patře komerčního objektu poblíž OC Krakov a zastávky autobusu. Prostory jsou kolaudovány jako zubní středisko. Další možné využití: kancelář, ateliér, učebna, výtvarná dílna, rehabilitace, masáže, sklad. Prostory jsou vymalované a mají vlastní WC a sprchu. Majitel ještě dodělá společnou kuchyňku a všude položí nové lino.
Ve stejné budově nabízím ještě jeden menší prostor o výměře 17 m2. Z důvodu nepředložení průkazu energetické náročnosti budovy uvádíme energetickou třídu G.
Nejde o nabídku k uzavření jakékoliv smlouvy, ale o nezávazné poskytnutí základních orientačních informací, resp. nejde o součást kontraktačního procesu dle ust. § 1731 a násl. zák. č. 89/2012 Sb., občanského zákoníku v platném znění, a tedy se neuplatní ust. § 1729 zák. č. 89/2012 Sb., občanského zákoníku v platném znění. K případnému uzavření jakékoliv smlouvy může dojít toliko v listinné formě, po dohodě na jejím obsahu a všech náležitostech, přičemž případné právní jednání bude uskutečněno přímo mezi smluvními stranami."
Informace k nemovitosti
| Lokalita: | Lodžská, Praha - Troja |
| Cena: | pronajato |
| Kategorie: | Kanceláře |
| Datum realizace: | červenec 2022 |

Lukáš Pecháček
M: +420 727 886 321T: +420 221 722 036
[email protected]Kontaktovat I.E.T.Reality, s.r.o.
Lindleyova 2822/2
Praha 6













